CNPE EDF | Nogent-sur-Seine

Conception et exécution en béton armé

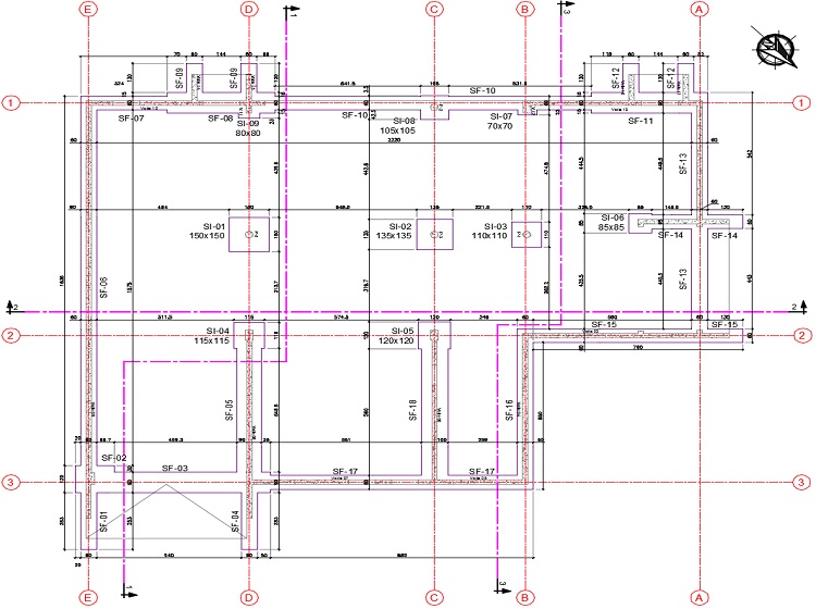
Le projet prévoit la construction d’un bâtiment de contrôle d’accès pour le personnel de la centrale de Nogent sur Seine. Le bâtiment a une ossature BA (poteaux, poutres, planchers et murs en béton armé). L’infrastructure est constitué d’une dalle portée sur des longrines et des semelles isolés / semelles filantes. Au droit des tourniquets de contrôle il a été conçu un radier général avec un décaissé. Le plancher haut du RDC est une terrasse technique.