EDF R&D | Seine et Marne (77)

Création d'un poste de distribution électrique

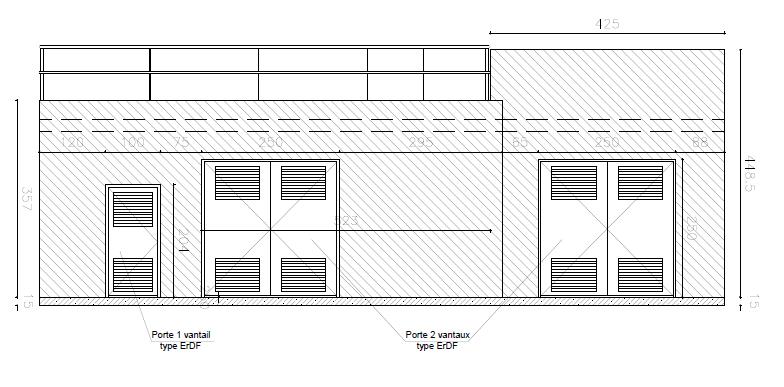
Sur le site Renardières, un nouveau poste de distribution électrique « ENERGY » a été construit.
Notre mission a été de réaliser les études de conception/suivi EXE de nouveau local, partie GO et VRD, en prenant en compte les contraintes techniques à respecter à l’intérieur du local, la création d’une terrasse végétalisée et l’intégration de nouveau bâtiment dans l’environnement existant.
Création d’un poste de distribution Electrique « ENERGY », Etude de conception + Exécution (GO – VRD)